
Summerhouse in Gürgentepe
Introducing the Summer House: Imagine a place where you can escape from the hustle and bustle of everyday life, away from the noise and stress. The Summer House is a stunningly designed, contemporary home that provides a refreshing retreat, allowing you to relax and unwind in a beautiful natural setting.
With its sleek and sophisticated appearance, the Summer House is a stand-out addition to any property. Its open-air design and high-quality materials give it a modern, minimalist aesthetic that adds a touch of elegance to any outdoor space.
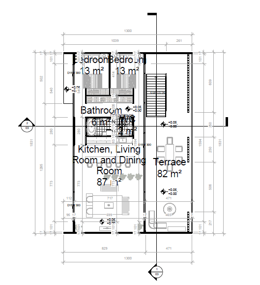
Inside, the Summer House features spacious interiors, with plenty of room for entertaining and socializing. The large windows and doors, along with the open floor plan, provide ample natural light and create a sense of connection to the outdoors.
The exterior of the Summer House is equally impressive, with a unique blend of materials that lend it a stylish and inviting appearance. From the warm wooden finishes to the modern metal accents, this house is sure to impress any homeowner looking for a striking and sophisticated outdoor space.
Project Type
Residential
Location
Turkey
Area
230 m²
Date
March 2024











