
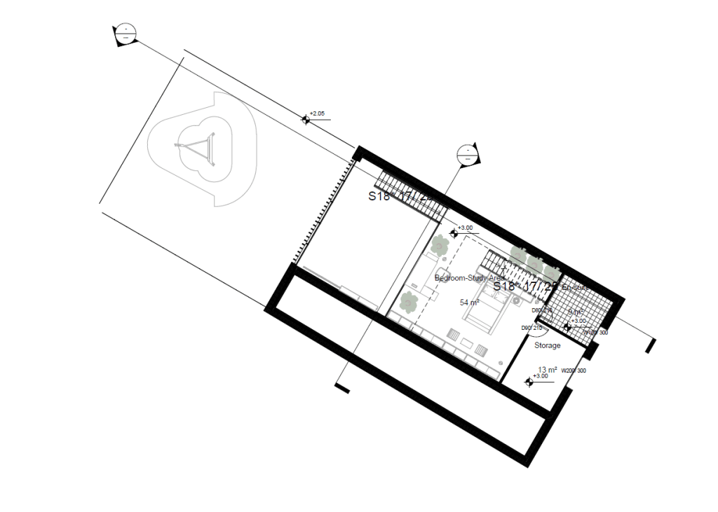
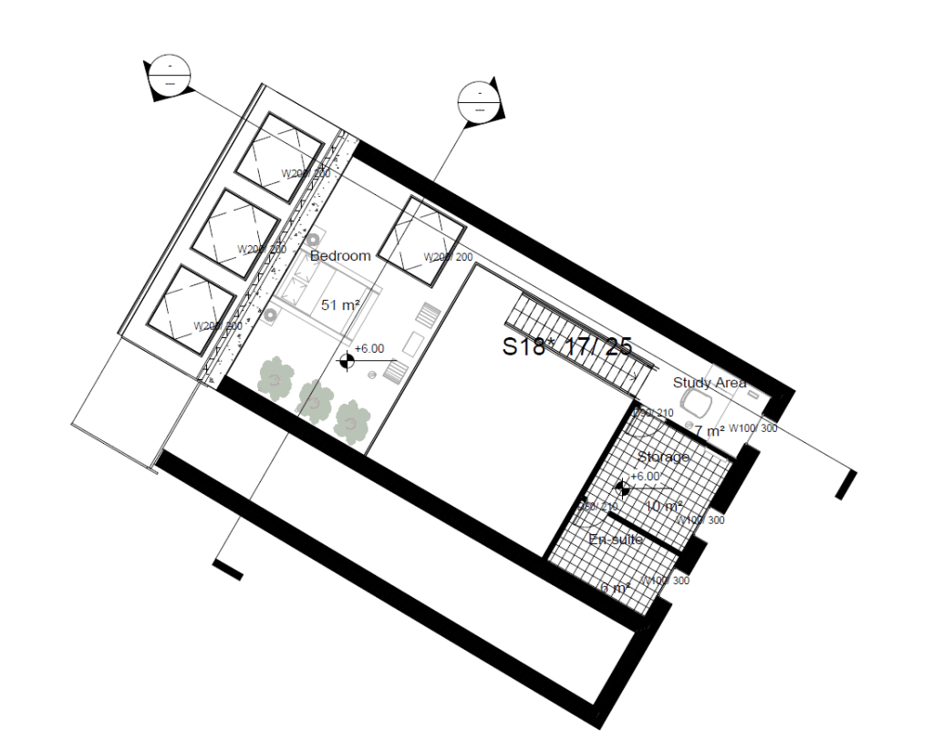
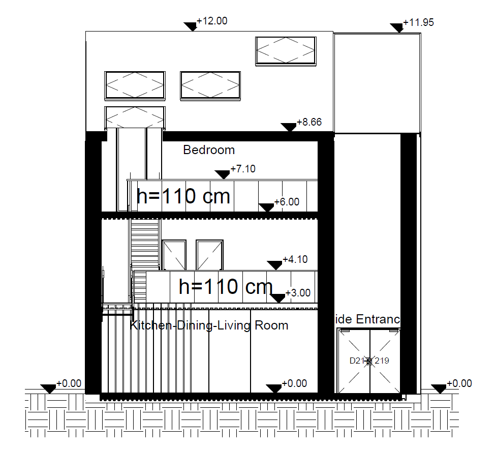
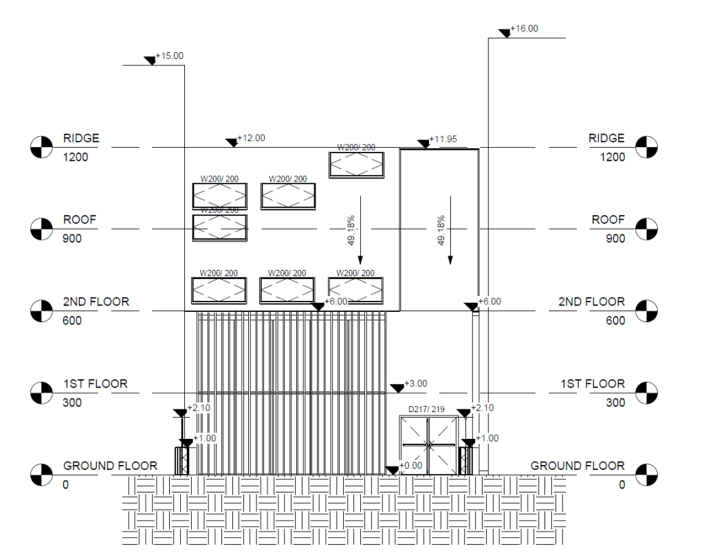
House in Eindhoven
Enjoy the finest living experience here! Located in Eindhoven, our meticulously designed home exudes modern elegance and functionality. With a spacious layout and high-end finishes, our property offers an inviting and comfortable atmosphere for you and your family.
Our kitchen is equipped with state-of-the-art appliances and features a sleek black and white design, making it the perfect space for preparing delicious meals and entertaining guests. The modern living room showcases a stunning open floor plan, creating a warm and welcoming atmosphere for relaxing after a long day.
Project Type
Residential
Location
Netherlands
Area
300 m²
Date
February 2024













