
Apartment in Darmstadt
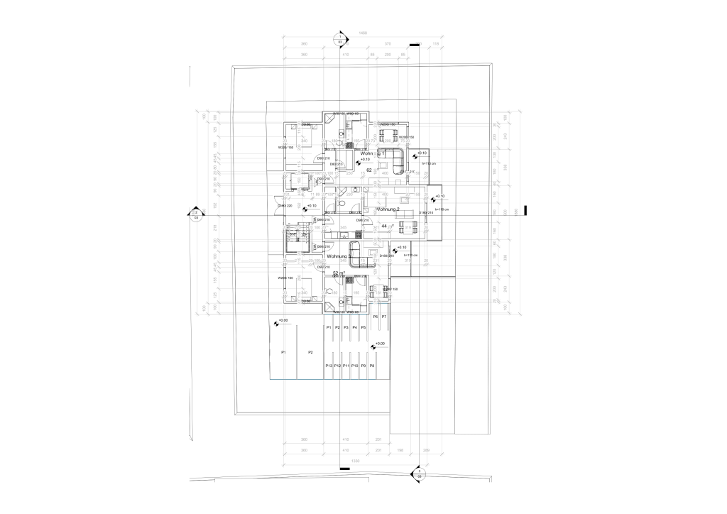
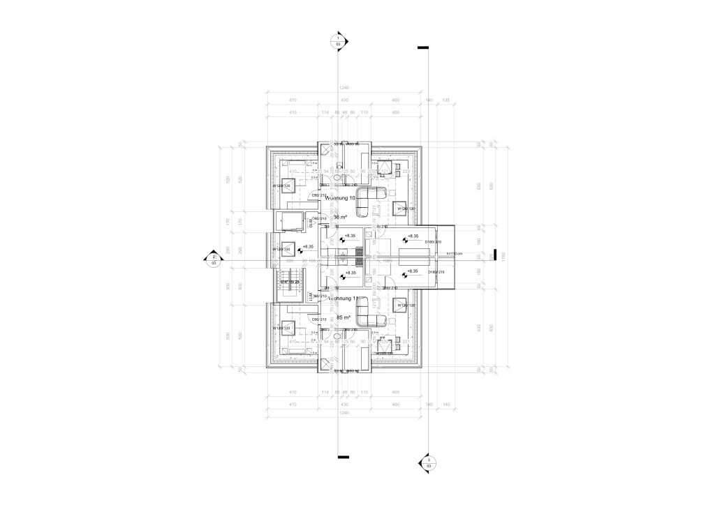
The apartment comprises of 11 flats with different types of floor plans. 1+0, 1+1 and 2+1 flats can be found on the residential block. Every plan types except 2+1 can be found on Ground, 1st and 2nd Floors. 2+1 plans are located on attic floor. Therefore, there are six 1+1, three 1+0 and two 2+1 residential units in the apartment. Modern finishes were utilized in every rooms of the building.
An underground basement and an open hard-surfaced area are functioned as car park area for 11 cars. Bicycle parks can be also found in these parking areas for almost 25 bicycles.
Project Type
Residential
Location
Germany
Area
500 m²
Date
September 2023


















